- 賃料33万円
- 種別店舗・事務所
- 坪単価1.9万円
- 敷金360万円
- 所在地
- 四条通寺町西入奈良物町 HI-REKSビル
- 交通
- 徒歩240m 徒歩3分
京阪本線 祇園四条駅 徒歩320m 徒歩4分
物件詳細
| 築年月 | 1998/11 | 新築/中古 | |
|---|---|---|---|
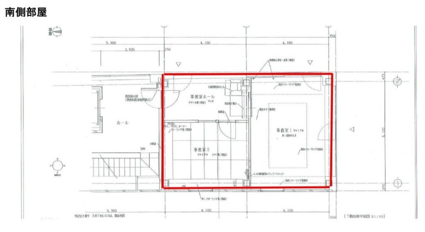
| 面積 | 58.27m² | 計測方式 | 壁芯 |
| バルコニー | 向き | ||
| 建物階数 | 地上7階 | 部屋階数 | 7階 |
| 建物構造 | 鉄骨造 | ||
| 建築面積 | 58.27m² | ||
| 間取内容 |
|
||
| 駐車場 | 無 | 取引態様 | 一般 |
| 引渡/入居時期 | 即時 | 現況 | 居住中 |
| 地目 | 用途地域 | 商業 | |
| 土地面積 | 58.27m² | 土地面積計測方式 | 壁芯 |
| 土地権利 | 接道状況 | 角地 | |
| 接道方向1 | 南 | 接道間口1 | |
| 接道種別1 | 公道 | 接道幅員1 | 22.0m |
| 接道方向2 | 東 | 接道間口2 | |
| 接道種別2 | 公道 | 接道幅員2 | 4.0m |
| 周辺環境 | |||
| 設備・条件 | エアコン セキュリティシステム エレベータ | ||
| 物件番号 | 300136766217 | ||
敷金:3年未満30%の返還、3年以上4年未満50%の返還、 4年以上5年未満80%の返還、5年以上100%の返還 定期借家5年、解約予告12ヶ月前までに 管理費:22,000/月額(館内清掃費・トイレ使用料)
※物件掲載内容と現況に相違がある場合は現況を優先と致します。


