- 賃料110万円
- 種別店舗・事務所
- 坪単価1.3万円
- 共益費・管理費55000円
- 保証金3ヶ月
- 所在地
- 京都府室町通綾小路下る白楽天町 (四条室町)立美ビル 4階
- 交通
- 徒歩240m 徒歩3分 徒歩400m 徒歩5分
物件詳細
| 築年月 | 1986/01 | 新築/中古 | |
|---|---|---|---|
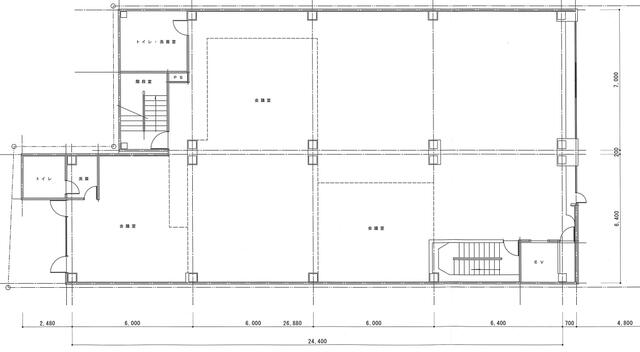
| 面積 | 300.00m² | 計測方式 | |
| バルコニー | 向き | ||
| 建物階数 | 地上5階 | 部屋階数 | 4階 |
| 建物構造 | 鉄骨造 | ||
| 建築面積 | 300.00m² | ||
| 間取内容 |
|
||
| 駐車場 | 取引態様 | 一般 | |
| 引渡/入居時期 | 相談 | 現況 | 空家 |
| 地目 | 用途地域 | 商業 | |
| 土地面積 | 300.00m² | 土地面積計測方式 | |
| 土地権利 | 接道状況 | 一方 | |
| 接道方向1 | 東 | 接道間口1 | |
| 周辺環境 | |||
| 設備・条件 | |||
| 物件番号 | 300134296598 | ||
※物件掲載内容と現況に相違がある場合は現況を優先と致します。

