- 賃料41.8万円
- 種別店舗・事務所
- 坪単価1.6万円
- 保証金114万円
- 所在地
- 京都府二条油小路町 S.T.F Bld.
- 交通
- 徒歩640m 徒歩8分 徒歩800m 徒歩10分
物件詳細
| 築年月 | 1976/04 | 新築/中古 | |
|---|---|---|---|
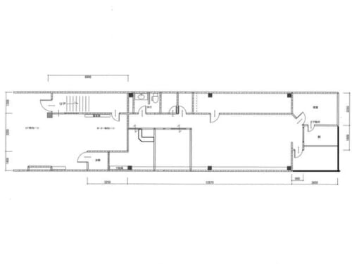
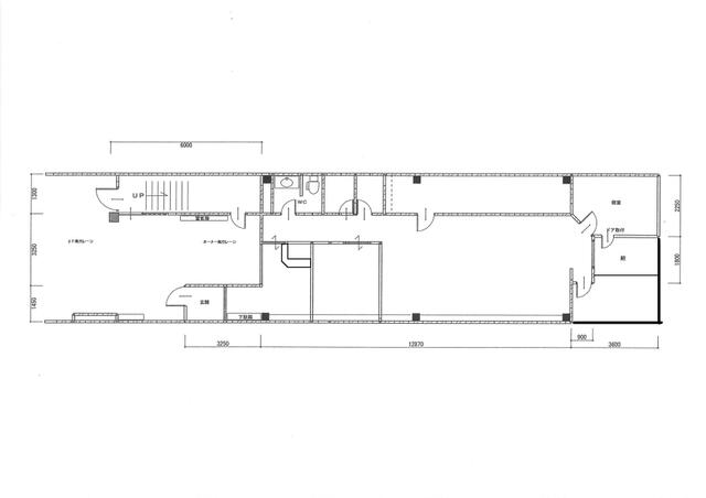
| 面積 | 91.00m² | 計測方式 | |
| バルコニー | 向き | ||
| 建物階数 | 地上3階 | 部屋階数 | 1階 |
| 部屋/区画番号 | 1F | 総戸/区画数 | |
| 建物構造 | RC | ||
| 建築面積 | 91.00m² | ||
| 間取内容 |
|
||
| 駐車場 | 空有 | 取引態様 | 専任 |
| 引渡/入居時期 | 相談 | 現況 | |
| 土地面積 | 91.00m² | 土地面積計測方式 | |
| 周辺環境 | 京都二条油小路郵便局 | ||
| 設備・条件 | 駐輪場 | ||
| 物件番号 | 300136488760 | ||
重飲食不可
※物件掲載内容と現況に相違がある場合は現況を優先と致します。









